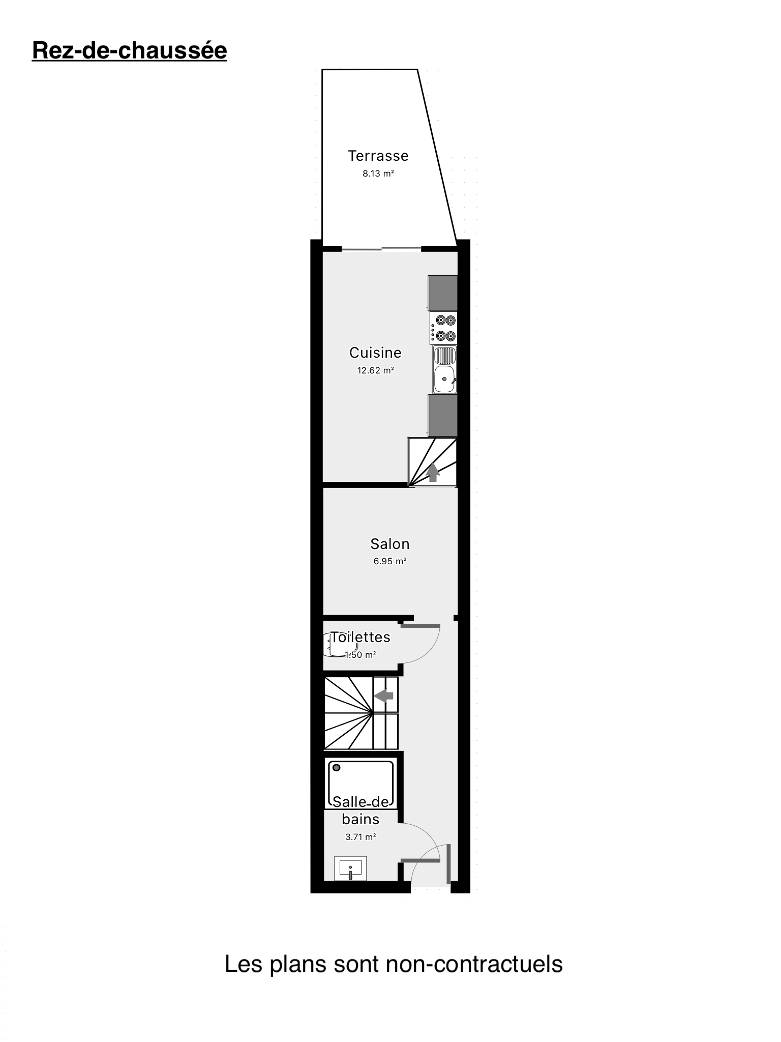
Description
Nichée au calme d’une rue en cul-de-sac à Seraing, cette charmante maison 2 façades vous accueille dans une atmosphère cosy et lumineuse, idéale pour se sentir rapidement chez soi. Dès l’entrée, vous découvrez un intérieur fraîchement rénové, où chaque espace a été pensé pour offrir confort et fonctionnalité. Le séjour, baigné de lumière, s’ouvre sur une cuisine équipée de 12 m², parfaite pour partager des moments conviviaux.
La maison propose également une agréable chambre de 13 m², un bureau idéal pour le télétravail ou un espace polyvalent, ainsi qu’une salle de bain et un WC indépendant. À l’extérieur, une petite terrasse orientée Est vous permettra de profiter tranquillement des premiers rayons du soleil, un vrai plus pour bien commencer la journée.
Côté technique, le bien est équipé d’un chauffage central au gaz, de châssis PVC double vitrage et d’une installation électrique conforme. Son PEB C assure un bon équilibre entre confort et performance énergétique. Actuellement louée, cette maison constitue une belle opportunité, tant pour un investisseur à la recherche d’un rendement intéressant (± 5,8 %) que pour un futur acquéreur souhaitant réaliser un premier achat serein. Proche des commodités tout en offrant un cadre paisible, ce bien combine parfaitement praticité et tranquillité.
PEB C (181Kwh/m².an – n° 20251024025052). RC (313 €). La maison est libre à l’acte.
L’annonce est non contractuelle et ne constitue pas une offre, toute cession est soumise à l’accord préalable des vendeurs.
Visite virtuelle
Lieu sur la carte
PEB
- Classe Énergie: C
- Performance Energétique: 181 kWh/m²a
- A+
- A
- B
- C
- D
- E
- F
- G



















